Approved Childcare Centre Site in Prime Red Cliffs Location!
59 Timbarra Way, Red Cliffs
Contact for price
Sold!
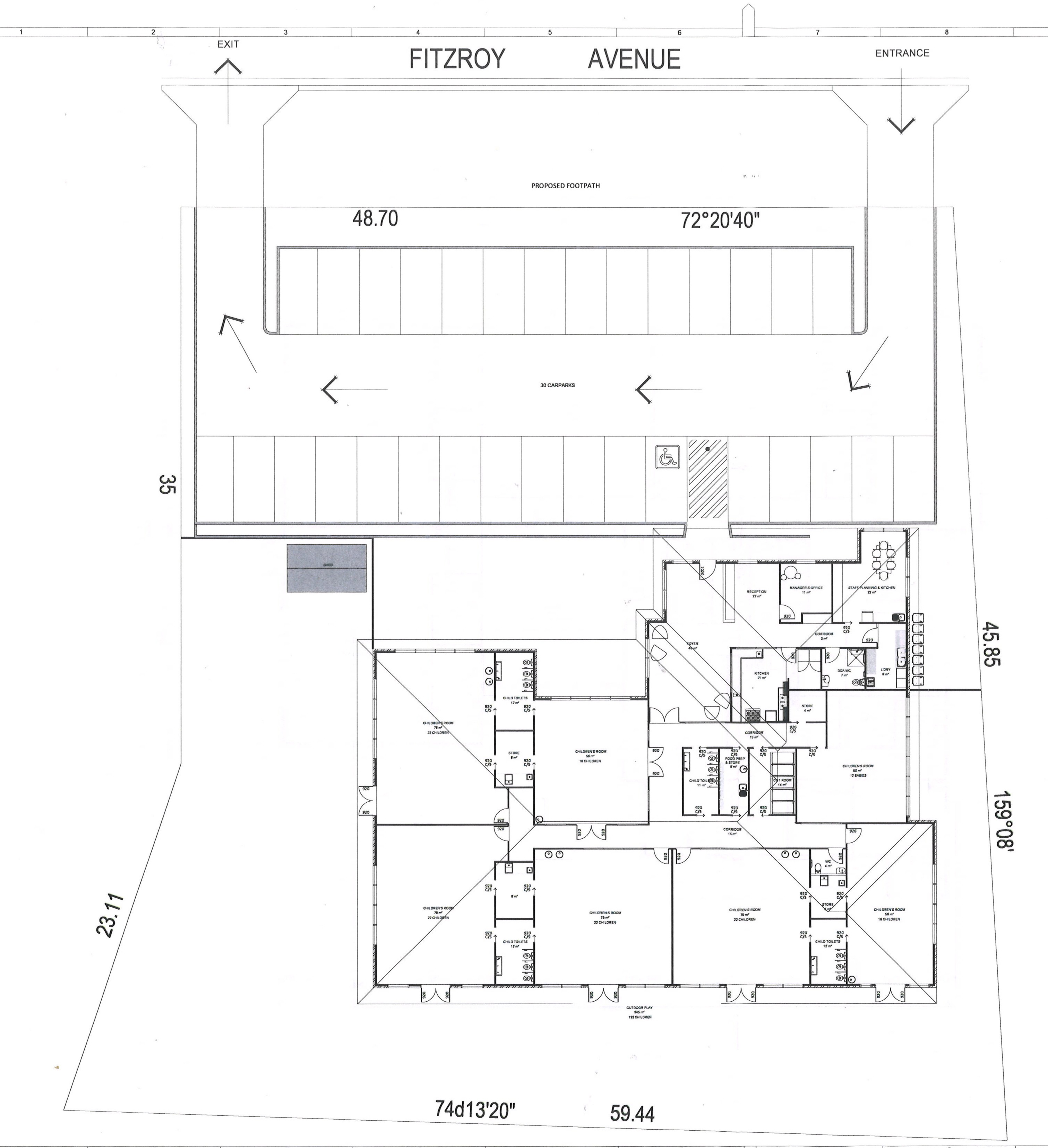
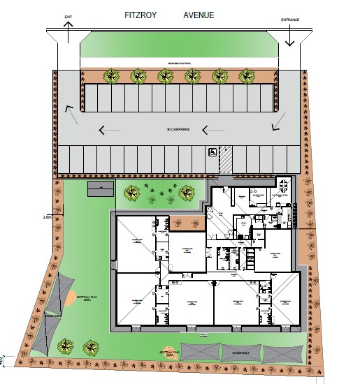
- 31 Car spaces
- 3000 sq metres
Description
Superbly located across from Red Cliffs Secondary College, with wide frontage (nearly 50m) and prominent location, just a short stroll to St Joseph’s Primary School, Red Cliffs City centre, parkland, and playgrounds is this fully approved Daycare Centre site. With permit just finalised for 132 Child, Childcare Centre, with approved well-designed layout allowing easy pick-up and drop-off. Alongside popular new residential subdivisions with young families building their dream family homes, and with Red Cliffs growing population, there is strong demand for a centre such as this in Red Cliffs - don't miss this great opportunity!
