Low Maintenance Secure Home or Investment!
3 / 24 Settlers Drive, Mildura
$290,000
Sold!
Townhouse
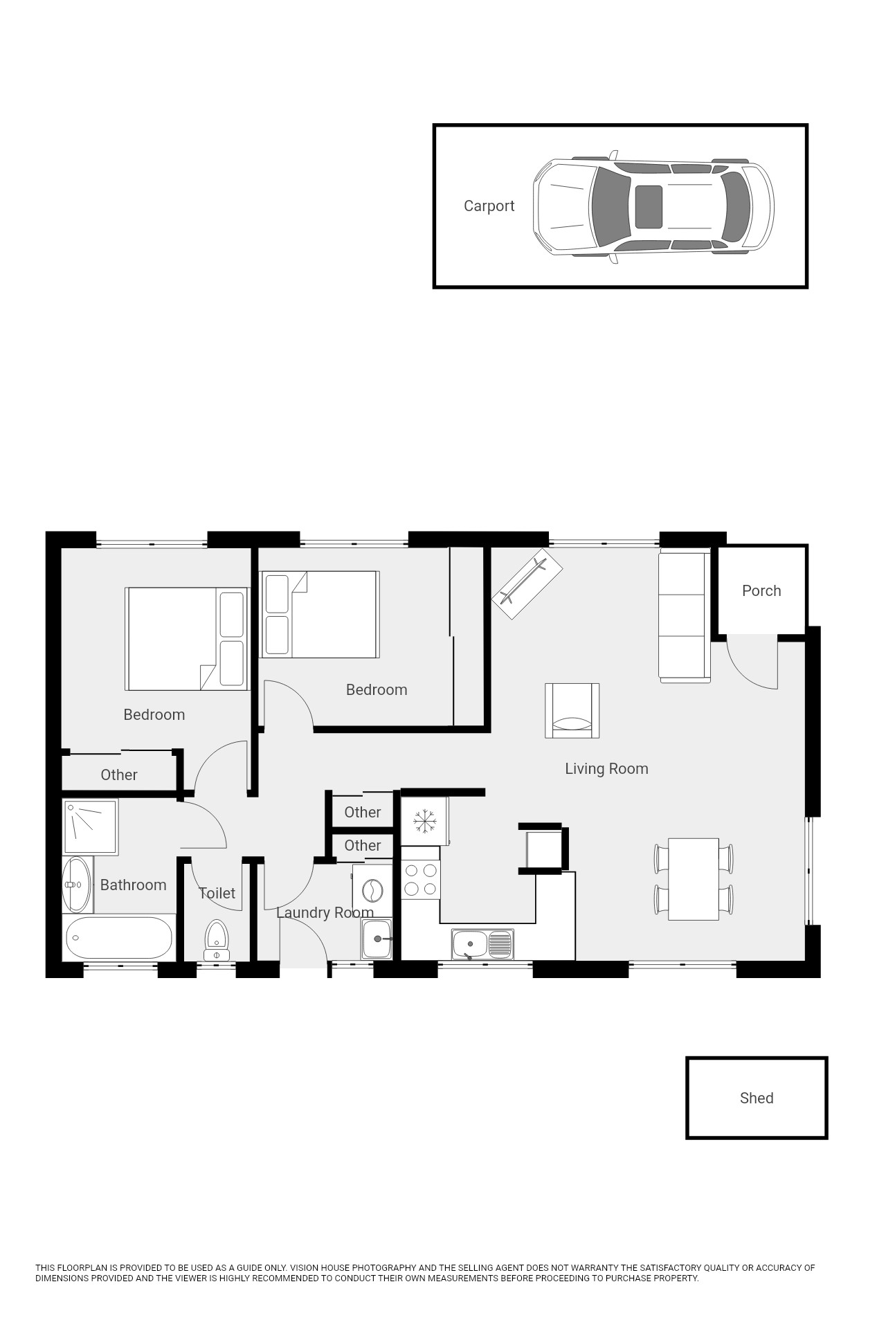
- 2 Bedrooms
- 1 Bathrooms
- 1 Car spaces
- 280 sq metres
Description
Well maintained two bedroom brick veneer townhouse nested in bowl of a quiet Court. Located near Mildura Centro and Mildura Fifteenth shopping district. This home has been well maintained and offers large meals area overlooking the generously sized kitchen with new oven and rangehood, adjoining the large lounge room. Both bedrooms have built in robes, the carpet and paint are in excellent condition, and the home is ready to move into. Outside features private established gardens and paved outdoor entertaining area, single carparking and guest parking available. With no owners corp fees and an expected rental of $300 per week, investors and owner occupiers don't miss this opportunity, this won't last long!
Features
Air Conditioning
Ducted Cooling
Evaporative Cooling
Fully Fenced
Outdoor Entertainment Area
Shed
Built-in Wardrobes

