Large & Unique Multipurpose Industrial-built Two Storey Office Building
53 Eighth Street, Mildura
Contact for price
Sold!
- 27 Car spaces
- 2782 sq metres
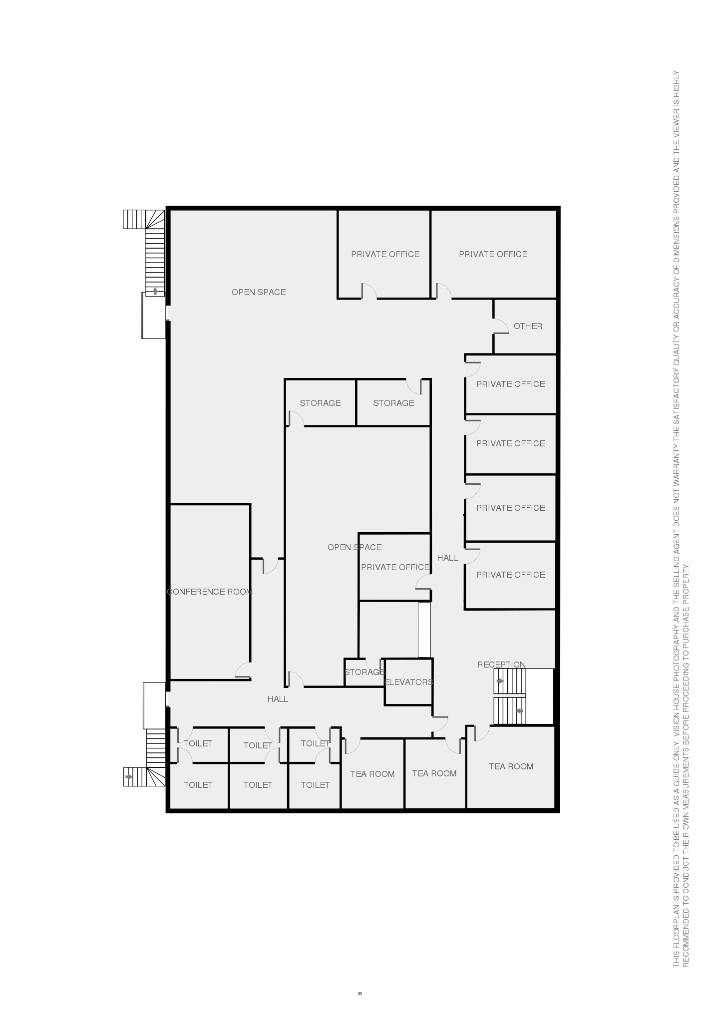
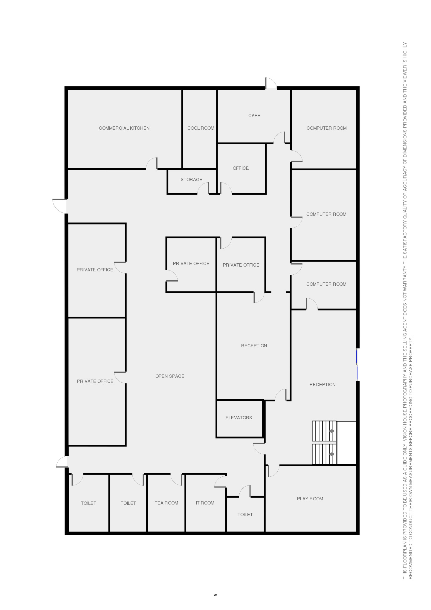
Description
Truly rare opportunity to secure a spacious an exceptionally well-fitted out modern office complex featuring:
Refurbished Offices, board room and staff amenities (including ample toilets)
Industrial kitchen
New Lift
Substantial secure and sealed staff car parking and storage facilities, with ample customer street parking.
Central location, near Mildura CBD (1km) with easy access to trade services, the Mildura main industrial precinct, and major national regional truck and freight distribution route.
Zoning: Industrial 1
Land Size: 2782m2
Building Size: 1200m2

